+7(812)643-42-76

Проектирование энергоцентров на базе газопоршневых и дизельных электростанций

«Альфа Балт Инжиниринг» обладает большим практическим опытом по всем направлениям инжиниринга в области реализации проектов энергоснабжения.

Одним из основных звеньев в структуре предприятия является Проектно- технологический отдел, специалисты которого обладают высоким уровнем компетентности в соответствующих областях знаний и владеют широким кругом необходимой технической информации. Данный отдел является подразделением, формирующим техническую политику компании, обеспечивающим выпуск продукции на уровне лучших мировых образцов.

Проектно-конструкторский отдел компании “Альфа Балт Инжиниринг” принимает участие в работах по нескольким направлениям:

комплексное проектирование систем автономного электроснабжения;
разработка новых серийных систем и конструктивов на заказ;
создание специальных решений для отраслей

Проектирование
Техническое развитие и совершенствование продукции является залогом успешной работы и будущего компании в целом.

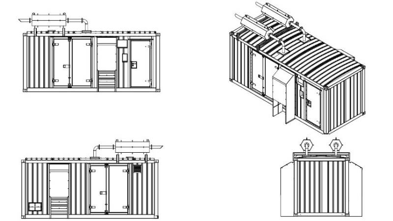
Опытный инженерный состав компании выполнит комплексное проектирование дизельных и газопоршневых электростанций типовых, а также нестандартных конструкций — от определения концепции до ввода в эксплуатацию на объекте. Для наших заказчиков такой подход является гарантией стабильной работы оборудования, безопасности и отсутствия проблем в будущем. Мы в кратчайшие сроки разработаем проектную документацию на ДГУ и ГПУ открытого исполнения, в кожухе, контейнере, на систему гарантированного электроснабжения в составе промышленных источников бесперебойного питания, системы управления, диспетчеризации с выездом на объект для проведения предпроектных изысканий.

  • Проектирование энергоцентров на базе газопоршневых и дизельных электростанций
  • Проектирование энергоцентров на базе газопоршневых и дизельных электростанций
  • Проектирование энергоцентров на базе газопоршневых и дизельных электростанций
  • Проектирование энергоцентров на базе газопоршневых и дизельных электростанций

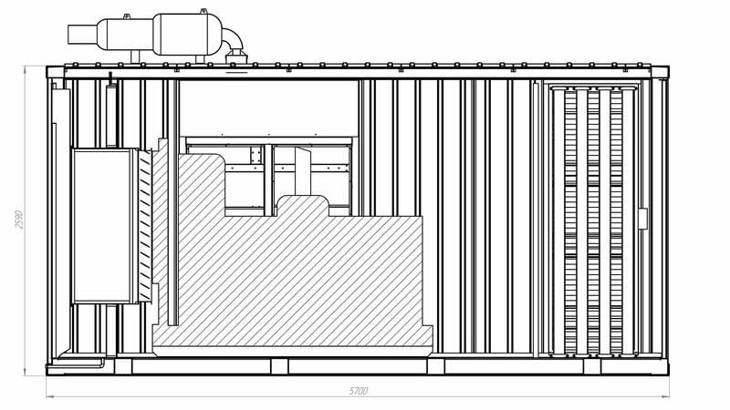
Основной функциональный элемент любой проектируемой нами установки — дизельный двигатель, вокруг которого разворачивается вся работа по расчету и моделированию конструкций. Чтобы предлагаемая продукция полностью соответствовала поставленным задачам, проектирование дизель-генераторов может строиться на базе моделей отечественных и европейских производителей с любыми необходимыми доработками, расширением возможностей и подготовкой оборудования к условиям местности: холодам Крайнего Севера и африканскому зною.

В каждом проекте важно заранее учитывать возможности транспортировки, а также проведения сервисных мероприятий, компонуя узлы таким образом, чтобы не выйти за заданные габариты и сохранить оптимальную доступность каждого из них. При составлении проекта мы всегда действуем исключительно в интересах заказчика.

  • Схема газопоршневого энергоцентра
  • Схема газопоршневого энергоцентра
  • Схема газопоршневого энергоцентра

Специальные решения для специфических задач

Ни одна из сфер: энергетика, строительство, промышленность, транспорт, агропромышленный комплекс и нефтегазовый сектор не обходятся без применения автоматизированных дизель-генераторных установок. В то же время все вышеперечисленные отрасли тесно связаны с целым набором узконаправленных задач, требующих максимально ответственного подхода в поиске и подборе технического решения, удовлетворяющего условиям проекта.

Одним из главных достоинств индивидуального производства электростанций является возможность проектирования ДЭС, подбора вспомогательных систем, разработки софта, всецело соответствующих поставленным задачам вне зависимости от их сложности. Подбор комплектующих производится по установленным ограничениям для предполагаемого места установки: по габаритам, температуре, давлению, шуму и т.д.

Проектирование ДЭС,
                         подбор вспомогательных систем, разработка софта

Большая доля ответственности в правильной работе дизельных агрегатов возлагается на систему управления, так, при профессиональном проектировании ДГУ наши специалисты уделяют особое внимание этой части системы.

На нашем счету уже несколько сотен успешно реализованных проектов как систем автономного, так и бесперебойного, гарантированного электроснабжения на базе ДЭС, ГПУ и ИБП. Поручите ваш проект компании с большим стажем — обращайтесь в «Альфа Балт Инжиниринг» по телефону или закажите заявку онлайн на сайте для оперативного выезда на объект и проведения предпроектного обследования, расчета решения или получения помощи в подборе энергоустановки.

Последние проекты

Поставка БКЭМ НОРД 1100 кВА ПС "Кингисеппская"
ПАО «ФСК ЕЭС»
Заказчик: ПАО «ФСК ЕЭС»

Поставка БКЭМ НОРД 1100 кВА ПС "Кингисеппская"

Энергетика
2012 г.
Поставка БКЭМ НОРД 1100 кВА ПС "Арсенал"
ПАО «ФСК ЕЭС»
Заказчик: ПАО «ФСК ЕЭС»

Поставка БКЭМ НОРД 1100 кВА ПС "Арсенал"

Энергетика
2012 г.
Поставка БКЭМ НОРД 1000 кВА ПС "Ярцево"
ПАО "ФСК ЕЭС"
Заказчик: ПАО "ФСК ЕЭС"

Поставка БКЭМ НОРД 1000 кВА ПС "Ярцево"

Энергетика
2012 г.
Отгрузка семи БКЭМ «НОРД» мощностью 300-500 кВт для МЭС Сибири
ПАО «ФСК ЕЭС»
Заказчик: ПАО «ФСК ЕЭС»

Отгрузка семи БКЭМ «НОРД» мощностью 300-500 кВт для МЭС Сибири

Энергетика
2012 г.
Отгрузка БКЭМ НОРД 400 и 280 кВА на ПС в Усть-Кут
ПАО «ФСК ЕЭС»
Заказчик: ПАО «ФСК ЕЭС»

Отгрузка БКЭМ НОРД 400 и 280 кВА на ПС в Усть-Кут

Энергетика
2012 г.
Поставка двух пар ДГУ Ausonia мощностью по 660 кВА для работы в параллель на горнолыжный курорт "Игора"
Генеральная строительная корпорация «ГСК»
Заказчик: Генеральная строительная корпорация «ГСК»

Поставка двух пар ДГУ Ausonia мощностью по 660 кВА для работы в параллель на горнолыжный курорт "Игора"

Строительство и ЖКХ
2013 г.
Отгрузка БКЭМ НОРД 660 кВА на ПС "Ручей"
ПАО «ФСК ЕЭС»
Заказчик: ПАО «ФСК ЕЭС»

Отгрузка БКЭМ НОРД 660 кВА на ПС "Ручей"

Энергетика
2013 г.
Блок-контейнерные электростанции для строительства магистральных ВОЛС
Заказчик:

Блок-контейнерные электростанции для строительства магистральных ВОЛС

Строительство и ЖКХ
2013 г.
Отгрузка и монтаж БКЭМ НОРД 1100 кВА на ПС "Пулковская"
ПАО «ФСК ЕЭС»
Заказчик: ПАО «ФСК ЕЭС»

Отгрузка и монтаж БКЭМ НОРД 1100 кВА на ПС "Пулковская"

Энергетика
2014 г.
4 ДГУ в контейнере мощностью до 2200 кВА на объект строительства Алабяно-Балтийского тоннеля
ООО "МИП Строй №1"
Заказчик: ООО "МИП Строй №1"

4 ДГУ в контейнере мощностью до 2200 кВА на объект строительства Алабяно-Балтийского тоннеля

Строительство и ЖКХ
2014 г.
Поставка дизельных электростанций ЭДМ-01 и осветительных матч в рамках строительства автономных палаточных лагерей
Министерство обороны РФ
Заказчик: Министерство обороны РФ

Поставка дизельных электростанций ЭДМ-01 и осветительных матч в рамках строительства автономных палаточных лагерей

Вооруженные силы и МВД
2015 г.
Дизельная электростанция БКЭМ «НОРД-400/0,4-У1» на центральный склад REDMOND
ООО «Редмонд»
Заказчик: ООО «Редмонд»

Дизельная электростанция БКЭМ «НОРД-400/0,4-У1» на центральный склад REDMOND

Строительство и ЖКХ
2015 г.
ДГУ 240 кВт контейнерного исполнения для супермаркета «SPAR»
Заказчик: ООО «РМ-Контакт»

ДГУ 240 кВт контейнерного исполнения для супермаркета «SPAR»

Строительство и ЖКХ
2015 г.
2 дизельные электростанции в контейнере типа БКЭМ «НОРД» и ДЭС в кожухе «АБИН» на Каскад Кемских ГЭС
ПАО «ТГК-1»
Заказчик: ПАО «ТГК-1»

2 дизельные электростанции в контейнере типа БКЭМ «НОРД» и ДЭС в кожухе «АБИН» на Каскад Кемских ГЭС

Энергетика
2015 г.
Дизельная автоматизированная электростанция БКЭМ «НОРД 1100/0,4-УХЛ1» для ПС "Ногинск"
Россети ФСК ЕЭС
Заказчик: Россети ФСК ЕЭС

Дизельная автоматизированная электростанция БКЭМ «НОРД 1100/0,4-УХЛ1» для ПС "Ногинск"

Энергетика
2016 г.
ДГУ в шумозащитных кожухах для строительных магазинов «ВИМОС»
ООО "Торговый Дом "ВИМОС"
Заказчик: ООО "Торговый Дом "ВИМОС"

ДГУ в шумозащитных кожухах для строительных магазинов «ВИМОС»

Строительство и ЖКХ
2016 г.
ДГУ 1000кВА в блок-модульном исполнении для ГП «Лента»
ООО "СК Северо-Запад"
Заказчик: ООО "СК Северо-Запад"

ДГУ 1000кВА в блок-модульном исполнении для ГП «Лента»

Строительство и ЖКХ
2016 г.
Автономные источники электропитания для автоматической системы электроснабжения (АСЭС) арктических самоходных транспортных средств на базе гусеничных транспортеров «Витязь»
ООО «Интеграл»
Заказчик: ООО «Интеграл»

Автономные источники электропитания для автоматической системы электроснабжения (АСЭС) арктических самоходных транспортных средств на базе гусеничных транспортеров «Витязь»

Вооруженные силы и МВД
2016 г.
Электростанция дизельная блок-контейнерного исполнения установленной мощностью 660 кВА на ПС «Восточная Промзона»
ПАО «ФСК ЕЭС»
Заказчик: ПАО «ФСК ЕЭС»

Электростанция дизельная блок-контейнерного исполнения установленной мощностью 660 кВА на ПС «Восточная Промзона»

Энергетика
2017 г.
Разработка энергокомплекса мощностью 8,8 МВт для ТЭС, республика Эквадор (Ю. Америка)
ООО «Интер РАО – Экспорт»
Заказчик: ООО «Интер РАО – Экспорт»

Разработка энергокомплекса мощностью 8,8 МВт для ТЭС, республика Эквадор (Ю. Америка)

Энергетика
2017 г.
Остались вопросы?

Заполните форму или позвоните
по телефону +7(812)643-42-76